Heimkino „Casablanca“, solide „geschmiedet“-
Wie aus einem schlichten Hobbyraum ein Kino der Spitzenklasse wird.

Zur Hauptseite von www.Cine4Home.de



Ein Heimkino ist mehr als ein Raum mit etwas Projektorenhardware und wer das Thema Kino daheim wirklich auf einer hohen ästhetischen Ebene realisieren möchte, kommt um externe Hilfe meist nicht herum. In den USA hat sich dafür bereits seit den 90iger Jahren ein eigener Berufszweig entwickelt: So genannte „Installer“ kommen zu Ihnen nach Hause, eruieren den räumlichen Stand der Dinge und schneidern dann im wahrsten Sinne das Kino nach Maß, genau nach Ihren Wünschen und wie es die vorgesehene Örtlichkeit zulassen. Der Service hat sich bewährt, die besten Installer haben einen so guten Ruf, dass sie Werbung kaum nötig haben: Sie werden von zufriedenen Kunden im Bekanntenkreis weiter empfohlen.

Hierzulande sieht es da schon etwas unterentwickelter aus: Das Thema Heimkino steckt gesellschaftlich noch in den Kinderschuhen und hat trotz der immer weiter ausgedehnten Informationstechnologie des aktuellen Jahrzehntes (Smartphones, Social Networks, Tablets, Mediennetzwerke usw.) noch nicht die Akzeptanz der Notwendigkeit, wie eine Küche oder der Hobbyraum. Dabei brauch es in vielen Fällen noch nicht mal einen eigenen Raum, denn ein Installer schafft es auch, ein Heimkino so im Wohnraum zu integrieren, dass es bei Nichtgebrauch quasi unsichtbar ist.

Dementsprechend wenige auf Heimkino spezialisierte Installer gibt es derzeit in Deutschland, man kann sie an einer Hand abzählen. Einer der renommiertesten Pioniere auf dem Gebiet ist Jörg Michels, seines Zeichens „Heimkinoschmied“. Er machte sein Hobby zunächst zum Teilzeitberuf und gründete schließlich die „Heimkinoschmiede“. Sie befindet sich in der beschaulichen Moselstadt Bernkastel-Kues.

Durch seine Näher zur Luxemburgischen Grenze gehören zu Jörg Michels Kundenstamm daher nicht nur deutsche Heimkinofans, sondern auch luxemburgische, für Aufsehen sorgten auch stets seine Messestände auf der LuxExpo in den vergangenen zwei Jahren:



Egal wo:
Profi-Installer Jörg Michels zaubert Kinoatmosphäre herbei

Dass ein Heimkinoraum nicht gleich Heimkinoraum ist, sondern erst durch eine entsprechende Installation zum „Kino“ wird, zeigen wir anhand dieses Beispiels: Der luxemburgische Kunde betrieb vor seiner Bekanntschaft mit der Heimkinoschmiede bereits seit mehreren Jahren ein eigenes Heimkino im extra beim Hausbau dafür angelegten Raum, doch das Ergebnis entsprach nie so ganz seinen Vorstellungen.


Der Kinoraum, bevor die Heimkinoschmiede sich seiner annahm

Der Raum ist zwar halbwegs dunkel gehalten, vermittelt aber keinerlei Kinoflair, er wirkte vielmehr wie ein Schuhkarton, in dem man irgendwie die notwendigen Komponenten platziert hat.


Viel Platz, aber unbefriedigend genutzt.

Ein Besuch in den Vorführräumen von Jörg Michels gab dann schließlich ganz neue Impulse und Anregungen und es dauerte nicht lange, bis die Heimkinoschmiede den Auftrag erhielt, ein „richtiges Kino“ zu realisieren.

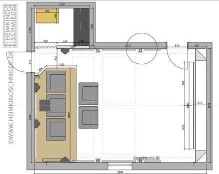
Die erste Bestandsaunahme zeigte schnell: Ein Haus bauen ist eine Sache, ein Heimkino eine ganz andere, denn viele Anfängerfehler fielen dem Fachmann direkt auf. So war der Projektor nicht zentriert zur Leinwand positioniert, die Akustik durch Halleffekte unbefriedigend, die hellblauen Wände zu kontrastmindernd, usw., schnell wurde klar: Es muss eine komplette Neuinstallation her! Mit einem eigenen Grundriss wurde ein komplett neuer Bauplan entworfen:


Dieser Plan umfasst nicht nur die grobe Anordnung der Hauptkomponenten, sondern berücksichtigt bereits aller relevanten Aspekte und Details, wie akustische Absorber, Beleuchtung, Podeste, variable Raumelemente, etc…

Die Installation sollte sowohl bildtechnisch als auch akustisch kompromisslos werden: Als Leinwand kam ein akustisch transparentes Modell zum Einsatz, das die Positionierung der Lautsprecher hinter der Leinwand erlaubt. Diese Technik ermöglicht nicht nur einen Raum frei von Speakern, sondern entspricht auch öffentlichen Kinos. Der Ton ist so besser dem Bild zuzuordnen und wird noch authentischer.

Wichtig bei diesem System ist die Wahl des Tuchmaterials: Es muss schalldurchlässig sein, sollte aber gleichzeitig das gesamte Licht des Projektors reflektieren. Eine schwierige Aufgabe, die entsprechend kostenintensiv ist.

Für den notwendigen Surroundton sorgen zudem vier weitere Dipol-Lautsprecher, die seitlich und hinter den Sitzreihen positioniert sind und mit speziellen Messinstrumenten eingemessen wurden.


Um Halleffekte und Auslöschungen der Lautsprecher zu reduzieren, sind an entsprechenden Stellen besondere Absorberstoffe integriert worden. Teilweise wurden diese flexibel eingesetzt, um z.B. den gelegentlichen Zugang zu einem Fenster zwecks Durchlüften zu ermöglichen.



Kinobauer Jörg Michels zeigt die geheime Absorber-Tür vor dem Fenster


Soweit der Ton, die Realisierung des Bildes ist nicht weniger beeindruckend: Der alte Sony-Beamer wurde durch einen HihEnd Projektor ersetzt (JVC DLA HD750), der zusätzlich mit einer anamorphotischen Zusatzoptik ausgestattet wurde. Die Vorteile eines richtig installierten Anamorphoten liegen in der höheren Auflösung und Lichtausbeute bei Cinemascope-Filmen. Doch damit nicht genug: Damit der Projektor das Raumambiente nicht stört und im Filmbetrieb der Zuschauer nicht von der Belüftung belästigt wird, wurde dieser in eine eigene Vorführkammer verbannt, wie im richtigen Kino!

Das Bild gelangt durch einen Trichterförmigen Durchbruch in den Kinoraum und leuchtet weit über die Köpfe der Zuschauer hinweg auf die Leinwand. Unnötig zu erwähnen, dass Jörg Michels das Bild komplett gemäß den Videonormen mittels Messinstrumenten kalibriert hat.

Auch der Rest der Technik wurde versteckt und vom Kinoraum ferngehalten, indem man sie komplett in einen kleinen Kontrollnebenraum verbannt hat, zu dem man durch einen dunklen Vorhang Zugang erhält.

Hier ist mehr als genug Platz für die gesamte Filmesammlung, Verpflegung der Kinogänger und den „Hifiturm“, bestehend aus einer kompletten Denon-Kette aus DVD-Player, Blu-ray Player und Verstärker:

 

Dies alles reicht bereits, um ein Bild auf die Leinwand zu zaubern, doch ebenso wichtig ist eine richtige Beleuchtung. Sie sorgt vor und nach dem Film für eine entspannte Atmosphäre und daher das „A und O“ einer jeden professionellen Installation.


Die in einer Nische versteckte Lichtsteueranlage

Auch hier ist Jörg Michels keine Kompromisse eingegangen: Mit einer Lichtsteuerungsanlage von Lutron („Graphic Eye“) kann in diversen Steuerkanälen die Lichtfolge programmiert werden. In Anbetracht der zahlreichen Lichtelemente im Raum führte an ihr kein Weg vorbei.


Für die notwendige Ausleuchtung sorgt indirektes Licht, das von dezent versteckten Minispots in den Raumkanten ausgestrahlt wird. Doch die eigentliche Lounge-Atmosphäre wird durch das Lavadekor in Verbindung mit farblich programmierbaren Lichtleiterelementen erzeugt:

  


Unsere beiden Hauptsinne (Sehen & Hören) sind damit bereits bedient, es verbleibt der dritte Sinn, wenn es um Wohlbefinden geht, das Gefühl: Für die notwendige Bequemlichkeit sorgen speziell angefertigte Kinosessel, die sich elektrisch in jede beliebige Position versetzen lassen.

Sie sind in zwei Reihen angeordnet und bieten Platz für bis zu sechs Gäste. Damit auf den hinteren Plätzen die Sicht nicht verdeckt wird, wurden sie auf ein spezielles Podest gesetzt, das durch eine LED-Leiste optisch markiert ist.


Damit das Wohlbefinden nicht durch eine schlechte Systemsteuerung getrübt wird, erfolgt sie zentralisiert durch eine Philips-Proto mit Touchdisplay. Mit Hilfe eines Knopfdrucks kann der „Kinobetreiber“ die diversen Steuer-Makros abrufen, bequemer geht es nicht mehr.

Soweit die endlosen spektakulären Einzelheiten dieses Superkinos, dass die Macher nach den Filmklassiker „Casablanca“ benannt haben. Doch Bilder sagen mehr als tausend Worte, daher abschließend eine paar Vorher<->Nachher Beispiele:

 

Vorher…

 


…und nachher!

Vorher…

…und nachher!

Vorher…


… und nachher!

Hier wird jedem deutlich, dass die Anfänger-Zeiten, wo ein spärlich ausgestatteter Kelleraum ein Heimkino sein sollte, längst vorbei sind. Nicht die Projektions- und Audiotechnologie alleine erzeugen das Gefühl, das Kino in die eigene vier Wände transferieren zu können. Erst der Luxus, durch eine hochwertige Kinoinstallation inkl. Multimediasteuerung und passender Innenarchitektur machen das Großbildvergnügen perfekt. Für beste Ergebnisse ohne böse Überraschungen sucht man dafür einen Profi-Installer wie Jörg Michels und seine Heimkinoschmiede in Bernkastel Kues auf. Dieser erfüllt alle Wünsche und Träume denn nichts ist unmöglich und das Deutschlandweit!

 

 

Adresse:

Die Heimkinoschmiede

Jörg Michels
Friedrichstraße 12
54470 Bernkastel-Kues

Telefon: Tel: 06531/94449
Fax: 06531/91305

Mobil: 0171/3242826
E-Mail:
Webseite: www.heimkinoschmiede.de


 


Zur Hauptseite von www.Cine4Home.de